Действия при замене и ремонте насоса
Поменять этот агрегат можно своими руками. Возможна даже замена подшипника, вышедшего из строя. В этом случае пригодится ремкомплект насоса гидроусилителя, который можно купить в любом автомобильном магазине.
Прежде чем принимать решение на проведение ремонтных работ надо проверить наличие жидкости в бачке, а также соответствие ее марки разрешенной к применению на данной машине. Часто, причиной возникновения признаков неисправности бывает появление воздушных пробок в системе. Поэтому при подозрении на это надо прокачать гидравлику, удалив все воздушные пробки. Работоспособность ГУР в этом случае может полностью восстановиться.
Если при проверке качества рабочей жидкости обнаружится, что она не соответствует стандарту, надо поменять ее на жидкость нужной марки.
В случае когда принято решение делать ремонт насоса гидроусилителя руля, требуется подготовить рабочее место и нужный инструмент, а также материалы для проведения работ:
- нужен ключ на «12», а также головки на «14» и «24»;
- потребуется съемник для стопорных колец;
- заранее приготовить две шайбы из меди, прокладку для заднего кожуха, уплотнительные кольца, в количестве двух штук и сальник, их может заменить ремкомплект насоса гидроусилителя;
- обязательно наличие подшипника, имеющего маркировку «6202» и внешний диаметр 35 мм;
- для откачивания масла из бачка нужен большой шприц и емкость;
- очистить верстак и покрыть его чистым картоном для разборки насоса;
- подготовить мелкую наждачную бумагу и ветошь для протирки.
ГАЗ Соболь Баргузин › Бортжурнал › Рулевой редуктор ШНКФ
Вот не дает мне покоя рулевой редуктор, течет как не хорошая женщина… Но и менять его цена кусается… Опять же картина под капотом заставляет предпринимать действия…
Ремкомплект в городе нашем стоит 2500 рублей под заказ неделя… Заказал в интернет магазине за 900 рублей и через 3 дня он у меня А на штрафстоянке наблындил подопытного)) Отмыл и понеслась! Ничего особо сложного, открыл и поменял все колечки и резинки, не стал менять только ту пару которая внутри поршня на винте, так как начитался про сложности в закатывании шариков, да и второпластовые кольца на остальных деталях без выработки, течь была с сальника крышки, но требовалась регулировка и раз уж есть ремкомплект и снятый редуктор то заменил уплотнения. Для регулировки изготовил ключ под эксцентрики и по инструкции из руководства отрегулировал люфты в подшипниках, и паре рейка сошка. Завтра буду пробовать ставить, посмотрим что из этого выйдет)
>Бачок и шланги гидроусилителя руля ГАЗ-3302
Замена рулевого механизма с гидроусилителем ГАЗ-3110
Проверка
Повернуть рулевое колесо от упора до упора
Если рулевое колесо вращается в одну сторону легко, а в другую тяжело, следовательно неисправен механизм рулевого управления с гидроусилителем
Если рулевое колесо вращается тяжело в обе стороны, следовательно, неисправен насос.
Замена механизма рулевого управления
Установить автомобиль на стояночный тормоз.
Установить упоры под задние колеса.
Ослабить болты крепления переднего левого колеса.
Приподнять и установить на опоры переднюю часть автомобиля.
Отвернуть болты и снять колесо.
Со стороны ниши колеса снять с брызговика левого колеса грязезащитный чехол, поддев отверткой пистоны его крепления
Изнутри салона отвернуть гайку 1 крепления, вынуть клин 2 и отсоединить вал червяка механизма рулевого управления от карданного шарнира 3.
Слить жидкость из системы гидроусилителя.
Для этого отвернуть на насосе шланг, идущий к механизму рулевого управления.
Отвернуть два проводящих болта крепления и отвести в сторону шланги от механизма рулевого управления.
Обратить внимание на состояние медных прокладок проводящих болтов. Гнутые или сильно обжатые прокладки заменить
Гнутые или сильно обжатые прокладки заменить.
Предварительно пометив взаимное положение вала 1 сошки и сошки 2 рулевого управления, отвернуть гайку крепления и спрессовать сошку с вала.
Отвернуть четыре болта крепления и снять механизм рулевого управления.
При этом рекомендуется промаркировать болты, так как они разной длины.
Установить механизм рулевого управления в обратном порядке.
При этом гайки крепления механизма к лонжерону затягиваются моментом 50–60 Нм (5,0–6,0 кгс·м).
Сошку на вал установить в соответствии с метками.
При соединении вала червяка с карданным подшипником надо выставить передние колеса и рулевое колесо в положение движения автомобиля по прямой.
При подсоединении шлангов следить, чтобы они не касались выпускного коллектора.
-
Ремонт главного тормозного цилиндра пежо 206
-
Ремонт передних стоек ваз 2110 своими руками
-
Ваз 2110 заводится и глохнет
-
Ремонт ходовой фольксваген кадди
- Ремонт мерседес вито 447
Устройство
Как электроусилитель на Газель, так и ГУР предназначены для более комфортного управления рулем. Для начала разберем устройство ГУР на Газель. Речь идет как о Газель Бизнес с двигателем 405, так и о других моделях этой линейки.
- Насос ГУР. Этот элемент схемы обеспечивает оптимальную циркуляцию расходного материала в системе, а также давления.
- Рулевой редуктор с распределительным элементом. Данное устройство позволяет обеспечить приток воздушного потока, необходимого для направления масла в нужную полость цилиндра либо обратно в бак.
- Еще один компонент системы — цилиндр. С его помощью обеспечивается преобразование давления расходного материала в передвижение поршня, а также штока.
- Сам расходный материал, то есть масло. Жидкость передает усилие от насоса ГУР к цилиндру. Кроме того, масло обеспечивает смазку всех трущихся элементов устройства.
Ремонтные работы
Ремонт условно делится на несколько стадий: подготовка, демонтаж насоса, предварительный осмотр, замена деталей и/или устранение повреждений, обратная сборка и установка.
Подготовка к ремонту
Для проведения ремонтных мероприятий понадобятся: инструменты; тряпки; удобное, просторное и чистое место. Из инструментов будут нужны:
- ключи и головки;
- съемник для стопорных колец;
- большой шприц и емкость для откачивания жидкости из бачка;
- мелкая наждачная бумага Р1000/1500/2000, надфиль.
Для починки понадобятся: ремкомплект из автомагазина, или на замену ему шайбы, прокладка, уплотнительные кольца и сальник. Также может пригодиться подходящий рабочий подшипник, если дело в нем.
Демонтаж и осмотр насоса и поиск проблем
Сначала нужно демонтировать насос ГУР. Затем провести разборку и осмотреть каждую составляющую агрегата на предмет повреждений, после чего устранить их. Если неисправность нельзя будет исправить, то из следующего пункта вы узнаете как заменить насос, демонтировав его и установив новый.
Руководство по ремонту, установке и регулировке ГУР в Газель своими руками

Предназначение гидроусилителя руля заключается в обеспечении более удобного управления рулевым колесом. Сегодня система ГУР ставится на Газель и на многие современные авто. Подробнее об устройстве, неисправностях и ремонте узла в домашних условиях вы можете узнать из этого материала.
Устройство
Как электроусилитель на Газель, так и ГУР предназначены для более комфортного управления рулем. Для начала разберем устройство ГУР на Газель. Речь идет как о Газель Бизнес с двигателем 405, так и о других моделях этой линейки.
- Насос ГУР. Этот элемент схемы обеспечивает оптимальную циркуляцию расходного материала в системе, а также давления.
- Рулевой редуктор с распределительным элементом. Данное устройство позволяет обеспечить приток воздушного потока, необходимого для направления масла в нужную полость цилиндра либо обратно в бак.
- Еще один компонент системы — цилиндр. С его помощью обеспечивается преобразование давления расходного материала в передвижение поршня, а также штока.
- Сам расходный материал, то есть масло. Жидкость передает усилие от насоса ГУР к цилиндру. Кроме того, масло обеспечивает смазку всех трущихся элементов устройства.
Типичные неисправности и способы их устранения
Как любой узел, ГУР может время от времени выходить из строя.
Основные неисправности и методы их устранения приведены ниже:
- Износился приводной ремешок системы или он плохо натянут. В этом случае ремень либо меняется, либо регулируется его положение.
- Плохо поворачивается руль, это может быть обусловлено как износом ремешка, так и пониженным уровнем масла в системе, сниженным количеством оборотом мотора, забитым фильтром. Кроме того, проблема может заключаться в низком давлении насоса или воздушной пробке в магистралях.
В зависимости от проблемы, решение может заключаться в добавлении расходного материала, регулировке холостых оборотов, замене фильтра, ремонте насоса. Не лишним будет проверить герметичность соединений.
- Механическая поломка в работе системы рулевого управления, нужно произвести ее диагностику.
- Если не работает насос, нужно либо его отремонтировать с помощью рема (ремкомплекта), либо поменять сальники.
- Износ элементов рулевого управления или нарушение геометрии привода. Вышедшие из строя детали следует заменить.
- Если рабочая жидкость выбрасывается через предохранительный клапан, нужно найти место утечки и устранить проблему. Причина может крыться в неработоспособности насоса, следует проверить его рабочее давление.
- Повреждение либо износ шин, необходимо определить неисправные элементы и поменять их или отремонтировать.
Инструкция по ремонту насоса ГУР
Как могли догадаться из предыдущего пункта, если не работает гидроусилитель руля на Газель, то это связано с насосом. Чтобы произвести ремонт этого элемента в автомобиле своими руками, потребуется заранее приобрести ремкомплект. Купить можно в любом тематическом магазине. Основная трудность в ремонте заключается в том, что насос является не разборным.
Процедура ремонта осуществляется так:
- Демонтируйте насос и разберите в соответствии с инструкцией, которая идет в комплекте.
- Прочистите устройство от грязи, возможно, на корпусе будут виды причины выхода из строя. Обычно проблема кроется в износе сальника, тогда надо будет его поменять. При монтаже нового сальника следует доработать валик.
- Монтаж сальника может быть произведен несколькими способами. Можно соорудить специальную выточку на внешней части элемента, просверлить соответствующее отверстие с резьбой в стенке устройства, после чего зафиксировать сальник с помощью винтов. Также можете зафиксировать эту деталь в середине насоса с помощью специально загнутых концов корпуса.
- Когда замена элемента будет завершена, необходимо будет произвести сборку системы в обратной последовательности. Учтите, что после того, как ремонт будет окончен, при работе ГУР вы можете слышать нехарактерный для этого шум. Это притирка нового сальника, поэтому переживать по этому поводу не стоит.
Когда ремонт будет окончен, необходимо произвести замену масла в системе.
«Сборка и регулировка гидроусилителей для Газели»
- Улучшаем работу печки в салоне Газели: совершенству нет предела
- Неисправности электропроводки и ее замена на Газели
- Как отремонтировать КПП Газели своими руками
Регулировка рулевого редуктора Газели с гидроусилителем и без
Рулевой редуктор на автомобилях Газель устанавливается вне зависимости от наличия гидроусилителя. Он повышает надежность движения, безопасность водителя и пассажиров. Рассмотрим признаки неисправностей и способы регулировки рулевого редуктора Газели.
Признаки появления неисправностей
Узлы управления изнашиваются в первую очередь, поскольку они постоянно испытывают серьезные нагрузки. Рулевой редуктор в этом отношении представляет собой наиболее рискованный узел. После определенного времени эксплуатации проявляются признаки износа:
Износ рулевого редуктора ГАЗ
- Возникновение постороннего стука или вибрации, ощущаемой водителем через руль.
- Требуется значительное усилие при повороте руля.
- Наличие люфта— больше 20° для пассажирских или 25° — для грузовых автомобилей.
- Появление течи масла из редуктора. В какой-то степени масло всегда имеется на корпусе, но заметное выделение является признаком выхода из строя сальников.
Факт наличия этих признаков свидетельствует о том, что требуется регулировка рулевого редуктора Газели. Тянуть с этой процедурой не следует, так как одни неисправности неминуемо создают почву для появления еще более серьезных проблем.
Устройство и порядок демонтажа узла управления автомобиля Газель
Состав узла управления Газели:
- Колесо, установленное на валу и расположенное внутри колонки, имеющей возможность регулировки высоты и угла наклона.
- Механизм поворота.
- Привод.
Ремонт рулевой Газели выполняется по мере необходимости, преимущественно при появлении первых признаков неисправности.

Устройство рулевого управления ГАЗ
Дело в том, что для того, чтобы снять проблемный узел, понадобится:
- Распустить крепления передних колес
- Вывесить передний мост, подставить опору.
- Выбить тяги.
- Снять редуктор вместе с сошкой.

Поскольку эти действия достаточно трудны, процесс регулировки рулевого редуктора необходимо начинать после некоторых подготовительных операций:
- Проверка наконечников тяг.
- Регулировка развала-схождения.
- Настройка положения колонки и сиденья водителя.
Порядок ремонта рулевого редуктора
Регулировка рулевого управления на Газель начинается с регулировки люфта. Снимается пластиковый кожух, головкой на 13 отвинчиваются 4 крепежных болта и снимается металлическая защита. Под ней находятся регулировочные прокладки, с помощью которых устраняется слабина.
Порядок регулировки рулевого управления на Газель
Удаляется одна прокладка, узел собирается, проверяется наличие люфта. Если он не исчез, то процедура повторяется до полного устранения слабины. Проверять его надо при среднем положении руля, когда он минимальный. Настройка производится до тех пор, пока не будет достигнута максимальная легкость поворота вала при минимальном люфте.
После устранения люфта ремонт рулевой Газели продолжается. Выполняется регулировка зазора шариковой гайки с вал-сектором. Для этого надо надеть на вал сошку, повернуть вал рулевого колеса 2,5 оборота в любую сторону, проверить наличие свободного хода. Если он есть, придется настраивать положение подшипников. Там используются радиально-упорные подшипники, поэтому величина зазоров должна быть минимальной (в идеале — отсутствовать).
Примечательным обстоятельством является то, что шариковая гайка с винтом не подлежат разукомплектации, что в первые годы эксплуатации автомобиля Газель было существенным недостатком из-за отсутствия запчастей. Сегодня этот вопрос полностью решен, рынок располагает достаточным количеством деталей, что позволяет производить ремонт или настройку при первых симптомах неисправности.
Механизм рулевого управления с гидроусилителем ГАЗ 3110 Волга
- Руководства по ремонту
- Руководство по ремонту ГАЗ 3110 (Волга) 1996-2004 г.в.
- Механизм рулевого управления с гидроусилителем
5.8.1 Механизм рулевого управления с гидроусилителем ПОРЯДОК ВЫПОЛНЕНИЯ 1. Повернуть рулевое колесо от упора до упора. 2. Если рулевое колесо вращается в одну сторону легко, а в другую тяжело, значит неисправен механизм рулевого управления с гидроусилителем. 3. Если рулевое колесо вращается тяжело в обе стороны, значит, н… 5.8.2 Замена механизма рулевого управления ПОРЯДОК ВЫПОЛНЕНИЯ 1. Установить автомобиль на стояночный тормоз. 2. Установить упоры под задние колеса. 3. Ослабить болты крепления переднего левого колеса. 4. Приподнять и установить на опоры переднюю часть автомобиля. 5. Отвернуть болты и снять колесо. …
5.8.3 Замена насоса гидроусилителя Предупреждение Насосы могут поставляться в запчасти со штуцером под верхний шланг или без штуцера. Если новый насос без штуцера, надо выкрутить штуцер из старого. ПОРЯДОК ВЫПОЛНЕНИЯ 1. Установить автомобиль на стояночный тормоз. 2. Установить упоры под задние колеса. 3…
5.8.4 Замена жидкости ПОРЯДОК ВЫПОЛНЕНИЯ 1. Слить жидкость из системы гидроусилителя. Для этого отвернуть на насосе шланг, идущий к механизму рулевого управления. Снова подсоединить шланг к насосу и затянуть болт его крепления моментом 44–62 Н·м (4,4–6,2 кгс·м). 2. Отвернуть пластма…
5.8.5 Прокачка системы гидроусилителя ПОРЯДОК ВЫПОЛНЕНИЯ 1. Повернуть рулевое колесо до упора в одну сторону. 2. Отвернуть клапан выпуска воздуха на рулевом механизме. 3. Не заворачивая клапан, повернуть руль до упора в другую сторону. При этом из клапана должен выйти воздух, а затем жидкость. 4. Н…
↓ Комментарии ↓
1. Эксплуатация и техническое обслуживание
1.0 Эксплуатация и техническое обслуживание 1.1 Отопление и вентиляция салона 1.2. Обкатка автомобиля 1.3 Проверка автомобиля перед выездом 1.4 Периодичность замены эксплуатационных жидкостей, смазочных материалов 1.5 Уход за лакокрасочным покрытием кузова 1.6 Периодичность смазывания узлов автомобиля
2. Двигатель
2.0 Двигатель 2.1. Снятие и установка 2.2. Двигатель моделей 402 и 4021 2.3. Система смазки 2.4. Система охлаждения 2.5. Система выпуска отработавших газов 2.6. Система питания двигателя ЗМЗ-4062 2.7. Система питания двигателей ЗМЗ-402 и ЗМЗ-4021
3. Трансмиссия
3.0 Трансмиссия 3.1. Сцепление с диафрагменной пружиной 3.2. Сцепление с периферийным расположением пружин 3.3. Пятиступенчатая коробка передач 3.4. Четырехступенчатая коробка передач 3.5. Карданная передача 3.6. Задний мост 3.7. Полуоси 3.8. Главная передача
4. Ходовая часть
4.0 Ходовая часть 4.2. Задняя подвеска
5. Рулевое управление
5.0 Рулевое управление 5.1. Рулевое колесо 5.2. Рулевая колонка 5.3. Механизм рулевого управления 5.4. Рулевая трапеция 5.5. Шаровые шарниры рулевой трапеции 5.6. Маятниковый рычаг 5.7. Шаровой шарнир маятникового рычага 5.8. Механизм рулевого управления с гидроусилителем 5.9 Возможные неисправности рулевого управления.
6. Тормозная система
6.0 Тормозная система 6.1. Педаль тормоза 6.2. Вакуумный усилитель 6.3. Главный тормозной цилиндр 6.4. Передний тормозной механизм 6.5. Задний тормозной механизм 6.6. Регулятор давления 6.7. Стояночный тормоз 6.8 Прокачка тормозной системы 6.9 Возможные неисправности тормозной системы.
7. Электрооборудование
7.0 Электрооборудование 7.1. Аккумуляторная батарея 7.2 Блок предохранителей 7.3. Генератор 7.4. Генератор 9422.3701 или 2502.3771 7.5. Генератор 1631.3701 или 192.3771 7.6. Регулятор напряжения 7.7. Стартер 7.9. Звуковой сигнал 7.10. Система зажигания 7.11 Схема электрооборудования автомобиля ГАЗ-3110 с двигателем ЗМЗ-4062 7.12 Схема электрооборудования автомобиля ГАЗ-3110 с двигателем ЗМЗ-402
8. Кузов
8.0 Кузов 8.1. Передний буфер 8.2. Задний буфер 8.3. Брызговик облицовки радиатора 8.4. Капот 8.5. Переднее крыло 8.6. Крышка багажника 8.7. Передняя дверь 8.8. Задняя дверь 8.9 Замена ветрового и заднего стекол 8.10. Наружное зеркало заднего вида 8.11. Панель приборов 8.12. Стеклоочиститель 8.13. Переднее сиденье 8.14 Заднее сиденье 8.15 Ремни безопасности 8.16 Задняя полка 8.17 Навесное оборудование салона 8.18. Отопитель 8.19 Возможные неисправности узлов и деталей кузова.
9. Приложения
9.0 Приложения 9.1 Масса агрегатов 9.2 Лампы, применяемые на автомобиле 9.3 Подшипники качения, применяемые на автомобиле 9.4 Манжеты, применяемые на автомобиле 9.5 Горюче-смазочные материалы и эксплуатационные жидкости 9.6 Моменты затяжки ответственных резьбовых соединений *
10. Технические характеристики автомобилей
10.0 Технические характеристики автомобилей 10.1. Двигатель
Регулировка рулевого механизма с гидроусилителем
Снимаем рулевой механизм (см. Снятие рулевого механизма с гидроусилителем), не снимая сошки и удлинителя подводящего шланга.
Зажимаем механизм в тисках штуцерами вниз и сливаем остатки масла в емкость, поворачивая вал механизма ключом «на 17».
Нажав рукой на вал-золотник, покачиваем сошку.
Если при этом ощущается осевой люфт вала, регулируем упорные подшипники. Для этого…
…через бородок или выколотку выправляем буртик регулировочной гайки, закерненный в пазы картера.
Специальным ключом поворачиваем гайку по часовой стрелке до устранения зазора.
При этом контролируем момент вращения вала, который должен составлять не более 0,2 кгс.м. Для этого…
…динамометром зацепленным за ключ «на 17» измеряем момент проворачивания вала-золотника.
При длине рычага равной 200 мм усилие не должно превышать 1,0 кгс.
Бородком загибаем буртик гайки в паз.
Покачиваем рукой сошку рулевого механизма.
Если ощущается зазор, регулируем зубчатое зацепление.
…снимаем сошку с вала сектора (см. Снятие рулевого механизма с гидроусилителем).
Поддев отверткой или лезвием ножа, снимаем верхнюю…
…и нижнюю защитные крышки.
Ключом «на 13» отворачиваем контргайки стопорных болтов.
Ключом «на 12» отворачиваем стопорные болты на 2–3 оборота.
Специальным ключом поворачиваем регулировочные эксцентриковые обоймы подшипников вала-сектора.
Типы неисправностей и их симптомы
Проявления поломок насоса, описанные выше, в реальности могут быть и не связаны с самим насосом. Поэтому для начала нужно внимательно осмотреть всю систему гидроусиления руля. И только если проблема не найдена, приступить к работе с самим насосом.
Неисправности делятся на два типа:
- механические повреждения и износ. Сюда относятся появление заусенец, проблемы с подшипником, неровности во внутренней части, износ прокладки и т.д.;
- проблемы с гидравликой. Связаны с недостаточным уровнем жидкости, неправильным ее выбором и «старением». Попадание мусора внутрь системы также может приводить к появлению “симптомов”, а, в дальнейшем, к поломке. Банальное завоздушивание относится к этому же типу неисправности.
Первые можно определить только разобрав насос гидроусилителя руля и осмотрев каждую его составляющую. Что касается второго типа неисправностей, то в первую очередь нужно ответить на вопросы — сколько времени прошло с момента смены жидкости в системе? Подобрана ли жидкость в соответствии с инструкцией? Достаточен ли её уровень? А в случае завоздушивания, зачастую, достаточно прокачать гидравлику для восстановления работоспособности ГУР.
В любом случае, производители рекомендуют при возникновении любых проблем с насосом делать полную переборку и чистку. Это поможет уменьшить вероятность износа, а, следовательно, увеличит срок службы всей системы.

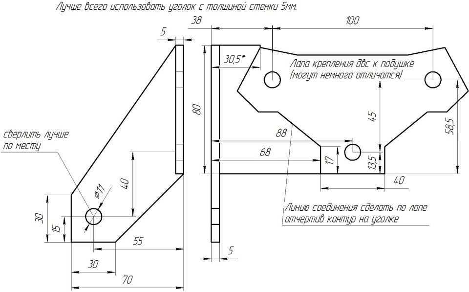
Установка гидроусилителя на газель 402
Всем доброго времени суток!
Всего существует два мне известных варианта установки насоса ГУР на заволжские нижневальники:На опору двигателя:

…и на ГБЦ. Так обычно ставят насос ГУР на УАЗ.

Всем известно, что опоры с креплением под кронштейн дикий дефицит, и чтобы сделать все максимально по заводскому, можно воспользоваться вторым вариантом.Так же для крепления насоса на опору тов. SkyRider предложил такой вариант:


Во втором варианте с кронштейном значительно проще. Я свой купил в автомагазине за 600р.Но я немного ошибся (два раза), что повлекло за собой ряд переделок кронштейна.


Вторую ошибку я совершил, когда не знал к какому насосу мне нужен кронштейн. У меня стоит был насос ZF, а я купил кронштейн про борисовский. Отличаются они местами крепления. Борисовский притягивается двумя болтами непосредственно к кронштейну, сверху на эти же болты прикручивается регулировочная планка и натяжение происходит затягиванием болта, выходящим из планки к кронштейну.

Насос ZF крепится через свой кронштейн. Выглядит он вот так:

Про длины ремней. на 24д первый ремень ставится 10X1100, второй (на ГУР) — 10X1250.Найти и заказать их можно в Экзисте, или в другом подобном магазине вбив эти размеры в строку поиска.





























